
Event information
モデルハウス販売
【岡山市東区広谷】和モダンのモデルハウス、新価格4,350万円(税込)+展示家具付き特典
- 開催日
- 随時
| 随時 | |
| - | |
【岡山市東区広谷】和モダンのモデルハウス、
新価格4,350万円(税込)+展示家具付き特典(2月末まで)
\家づくり新春応援キャンペーン/
2月末までのご契約で、展示家具無料プレゼント(ソファ・ダイニングセット)
光と影が表情をつくる和モダンの住まい

11月23日(日)まで岡山家づくりサミット内で展示していたモデルハウスを、この度、展示期間終了につき販売することになりました。
無垢の素材感とやわらかな光を活かした設計、外と内が緩やかにつながる庭との距離感、そして日々を心地よく過ごすための回遊性のある間取りを取り入れた和モダンな住まいです。

2方の道路それぞれからの視線に応えるように、角度によって異なる表情を見せる外観デザイン。
家族だけの時間が静かに流れる庭へとつながる、落ち着きあるリビング。
そして、外とのつながりと家族の気配をやさしく感じられるダイニング——。
家族が共に過ごす時間も、それぞれの時間も、どちらも心地よくいられるように。
暮らしの変化に寄り添いながら、長くやさしく包み込む住まいを目指しました。
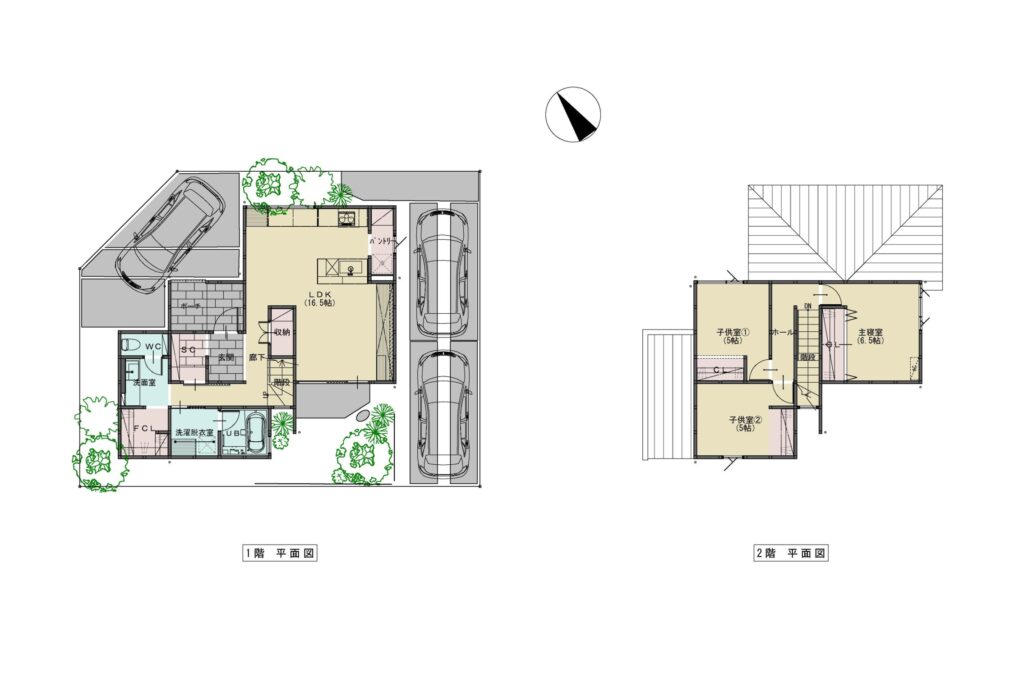
物件情報

販売価格:4,450万円(税込)※諸経費別途
土地面積:160.53㎡
延床面積:105.16㎡
間取り:3LDK
向き:東
構造/階数:木造軸組ピン工法/2階建
完成月:2025年7月
保証制度:設備保証10年、構造・防水保証有
地目:宅地
用途地域:第一種低層住居専用地域
建蔽率/容積率:50%/100%
駐車場:3台
都市計画:市街化区域
設備:オール電化
性能:●C値/0.15㎠/㎡ ※1 気密性能を表す値
●UA値/0.43W/㎡・K ※2 断熱性能を表す値
情報公開日:2025年10月27日
次回更新予定日:情報公開日より8日以内に更新
取引条件有効期限:2026年2月28日
<売主>
岡山県知事(11)第002717号
(公社)岡山県宅地建物取引業協会会員 中国地区不動産公正取引協議会加盟
佐藤建設(株)岡山支店
〒700-0953 岡山市南区西市852-7 SATO BASE 2F
※詳しくはSUUMOをご確認ください。
ベル・ホームが大切にしている暮らしづくり。
体感してください。
永く住まうほどに味わいが増し、家族の笑顔と共に輝きを深めていく。
そんな、まるで生きているかのような愛おしさを持つ家を、
私たち、ベル・ホームは追求し続けています。
暮らす場所が、どこよりも心地いい場所になるように。
心をほどき、時の流れを贅沢に味わう。
そんなひとときを、この住まいで体感してみてください。
みなさんの住まいづくりの参考にしていただけると思います。

来場予約フォーム
ご利用のメール環境によっては、当社からのメールが「迷惑メール」と判断され、届かない場合があります。
以下のドメインを受信できるよう設定をお願いいたします。
受信設定ドメイン:belle-home.jp
前日または当日のご予約では、託児をお受けできない場合がございますので、早めのご予約をお願いいたします。
- お電話でのお問い合わせ
-
岡山スタジオ0120-960-955
9:00 ~ 18:00 / 水曜日 定休
