
Modelhouse / Studio
問屋町展示場
TOIYACHO model house

光・風・木と調和する、五感で感じるモデルハウス
パッシブデザインを利用し、高気密・高断熱を実現した高性能住宅。
飽きのこない大人インテリアを取り入れた、自分たちが建てる家をイメージしやすいリアルサイズのモデルハウスです。
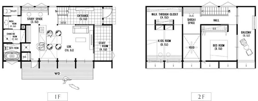
Floor Planフロアプラン

- 1階床面積
- 57.96 ㎡
[17.53坪]
- 2階床面積
- 54.65 ㎡
[16.53坪]
- 建築面積
- 67.07 ㎡
[20.28坪]
- 延床面積
- 112.61 ㎡
[34.06坪]
高い断熱性能
- UA値
- 0.45W/㎡・K
Point見どころ紹介

Facade外観
デザインにこだわった黒の外観が印象的な住まいに、緑豊かな自然あふれる外構がやさしく調和。

Livingリビング
吹き抜けと大きな窓から光が降りそそぐ、明るく心地よいリビング。
外に広がるウッドデッキはアウトドアリビングとして楽しめる。

Diningダイニング
友人を招いてホームパーティも楽しめるほどゆとりある広々としたリビングダイニング。

Kitchenキッチン
家の中心にキッチンを配置することで、自然とコミュニケーションが生まれる。
近くにはカウンターを設置しお子さまの勉強を見守ることも。

Entrance玄関
ドアの横の窓から太陽の光が差し込む明るい玄関。
リビングとの間仕切りに格子を設置することで、圧迫感なくプライベートを確保。

Powder room洗面台
収納も充実した大人デザインのシックなパウダールーム。

Bed roomベッドルーム
落ち着いたインテリアと照明がくつろぎを演出する寝室は、バルコニーともつながり、より深いリラックスを感じられる空間に。
来場予約フォーム
ご利用のメール環境によっては、当社からのメールが「迷惑メール」と判断され、届かない場合があります。
以下のドメインを受信できるよう設定をお願いいたします。
受信設定ドメイン:belle-home.jp
前日または当日のご予約では、託児をお受けできない場合がございますので、早めのご予約をお願いいたします。
- お電話でのお問い合わせ
-
岡山スタジオ0120-960-955
9:00 ~ 18:00 / 水曜日 定休
